Mokyklos ir darželio projektas, 2023
F3
Pavadinimas: F3
Objekto tipas: Studijų projektas / Mokyklos ir darželio projektas
Vieta: Filaretų g. 3, Vilnius
Metai: 2023
Autoriai: Aironas Barysas.

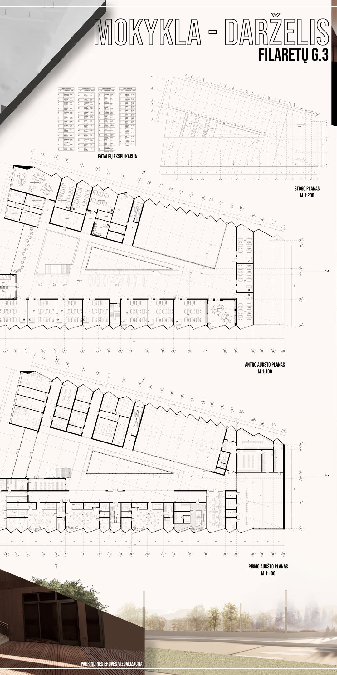
Projektas pristato šiuolaikišką švietimo įstaigą – mokyklos ir darželio kompleksą, integruotą į jautrią miesto struktūrą Filaretų gatvėje, Vilniuje. Architektūrinė idėja gimė reaguojant į aplinkinių pastatų urbanistinį sudėtingumą, kvartalo centre esantį želdyną bei reljefo ypatybes. Šie veiksniai lėmė organišką ir netipinę pastato formą, kuri darniai įsilieja į aplinką, išlaikydama aiškią švietimo paskirties pastato identitetą.
Koncepcijos pagrindas – švietimo pastatas kaip bendruomenės centras, kuriame svarbios ne tik mokymosi sąlygos, bet ir socialinių ryšių skatinimas, emocinis saugumas bei kūrybinė raiška. Pastatas formuojamas aplink šviesų vidinį kiemą, kurio ašys susijusios su teritorijos struktūra, reljefu bei funkcinėmis zonomis.
Projekto sprendiniai:
Architektūrinė forma – šlaitinis stogas, žaismingi pjūviai ir fasadų ritmas perteikia pastato dinamizmą, tuo pačiu kurdami ramybės ir saugumo jausmą vaikams.
Funkcinė struktūra – aiškiai atskirtos darželio ir mokyklos zonos. Pastatas dviejų aukštų, planinė struktūra leidžia efektyviai išdėstyti klases, pagalbines patalpas, administraciją bei multifunkcines erdves.
Medžiagiškumas ir interjeras – medžio apdaila, akustiniai lubų sprendimai ir natūralios spalvos kuria šiltą, jaukią atmosferą.
Tvarumo aspektai – orientacija pagal saulės kryptis, natūralus apšvietimas, maksimaliai išnaudojamas reljefas, siekiant sumažinti žemės judinimą ir geriau įkomponuoti pastatą į aplinką.








